Capannone in affitto

Rosà, Via brega - Contrada Brega
€ 14.700 / mese
5 locali 5 locali
3900 Mq 3900 Mq
3 bagni 3 bagni

Capannone in affitto

Rosà, Via brega - Contrada Brega

Descrizione annuncio

COSA SAPERE SULL’IMMOBILE

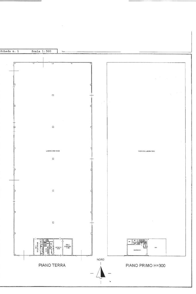
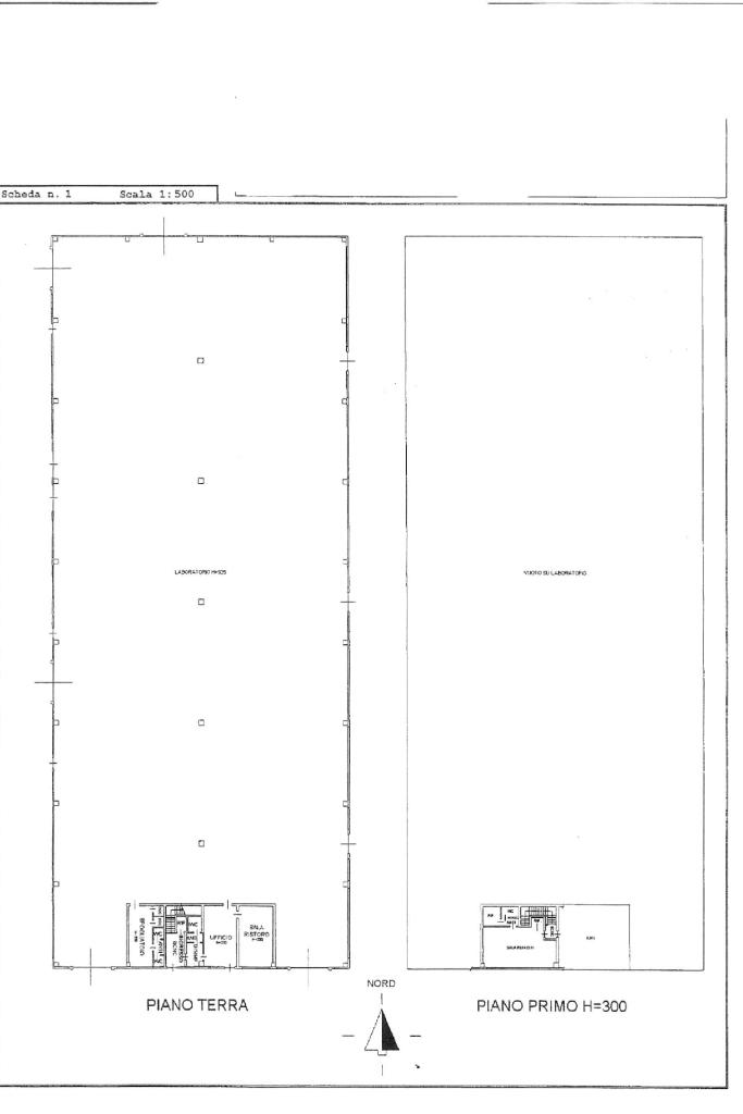
Capannone; 3900mq; Rosà (VI)

DESCRIZIONE E PARTICOLARITA’

Proponiamo in locazione capannone di 3900 mq situato nella zona industriale di Rosà (VI), in posizione strategica e facilmente accessibile.

L’immobile, si presenta in buone condizioni generali ed è ideale per attività produttive, artigianali o di deposito. L’altezza sotto trave di 9 metri garantisce ottima funzionalità e flessibilità degli spazi.

Il capannone è dotato di 5 portoni e presenta una zona uffici, pronta per l’utilizzo.

Completano la proprietà due servizi igienici e spogliatoi.

Il capannone è stato edificato in un lotto con piazzale esterno recintato che circonda tutto l’immobile

Soluzione ideale per aziende alla ricerca di un immobile funzionale e ben posizionato, all’interno di un contesto produttivo consolidato.

UBICAZIONE E CONTESTO

L'immobile sorge nel comune di Rosà (VI) e a pochi minuti dal casello della nuova Autostrada Pedemontana Veneta. L'area è facilmente raggiungibile e dotata di numerosi bar, ristoranti e parcheggi.

Per maggiori informazioni rivolgersi in agenzia.

0424 500740

vihp6

Per ulteriori informazioni contattateci in Agenzia e seguiteci su Facebook ed Instagram, cliccando 'mi piace' sulla pagina Tecnocasa Industriale Bassanese. Scaricate gratuitamente l'App Tecnocasa sul vostro smartphone e sarete sempre aggiornati sulle nostre proposte di vendita e locazione.

Mostra tutto

Nelle vicinanze

Trasporto pubblico Trasporto pubblico
Trasporto pubblico
1,8 Km
Laghi
Laghi
2,1 Km
Ricariche auto elettriche Ricariche auto elettriche
Villa Solaris Hotel & Residence
1,7 Km
Scuole Scuole
Scuole
940 m
Centro Civico Scalchi
1,3 Km
Scuola Elementare Francesco d'Assisi
1,8 Km
Scuola Primaria Statale "Giacomo Zanella"
1,9 Km
Ex Scuola Primaria di Sant'Anna
2,0 Km
Farmacia Farmacia
Farmacia Dr. Berto
1,9 Km
Farmacia Peserico
2,5 Km
Farmacia Binda
2,8 Km
Supermercati Supermercati
Supermercati
990 m
Alìper Cusinati di Tezze
2,3 Km
Prix Quality
2,5 Km
Eurospesa supermercati
2,7 Km
Negozi Negozi
Caseificio San Rocco
2,9 Km
Bar Bar
Bar
1,6 Km
Bar Tabacchi
1,9 Km
Snack Bar Luna Blu
2,1 Km
Patronato di Laghi
2,2 Km
Fashion
2,5 Km
Ristoranti Ristoranti
Pizzeria
1,7 Km
Ristorante Pizzeria Birreria Boca Bona
2,1 Km
Trattoria alla Pigna
2,4 Km
Disco Pub "La Casa dei Gelsi"
2,5 Km
Mostra tutto

Caratteristiche

Rif.:
61173162
Piano:
1 di 2 (Piano terra)
Posti auto:
10
Condizionamento:
Assente
Ascensore:
No
Riscaldamento:
Assente
Mostra tutto
Prezzo Prezzo
€ 14.700 / mese
Spese annue Spese annue
€ 0

Classe Energetica

D
D
D
D
D
D
D
D
D
EP globale non rinnovabile:
1234.00 kW h/m² anno
EP globale rinnovabile:
1234.00 kW h/m² anno
EP invernale del fabbricato:
EP estiva del fabbricato:
Anno di costruzione:
1990
Riscaldamento:
Assente

Ti interessa visionare l'immobile?

Fissa un appuntamento  Fissa un appuntamento

Richiedi informazioni

Clicca su Leggi per aprire l'informativa
* Questi campi sono obbligatori
Affiliato
Studio Industriale Bassanese Srl
Viale Vicenza, 81 36061 Bassano Del Grappa (VI)
Viale Vicenza, 81 36061 Bassano Del Grappa (VI)
Zona: Bassano del Grappa-Marostica-Tezze sul Brenta-Rosà-Cassola-Romano d'Ezzelino
Mostra su mappa
Affiliato
Studio Industriale Bassanese Srl
Viale Vicenza, 81 36061 Bassano Del Grappa (VI)

2026 Tecnocasa Franchising S.p.A. - P. IVA 08365160152 - Via Monte Bianco 60/A 20089 Rozzano (MI). Ogni agenzia ha un proprio titolare ed è autonoma. Privacy policy | Policy utilizzo | Cookie policy