Ufficio in affitto

Bassano Del Grappa, Quartier Firenze - Baggi
€ 700 / mese
3 locali 3 locali
50 Mq 50 Mq
1 bagno 1 bagno

Ufficio in affitto

Bassano Del Grappa, Quartier Firenze - Baggi

Descrizione annuncio

COSA SAPERE SULL’IMMOBILE

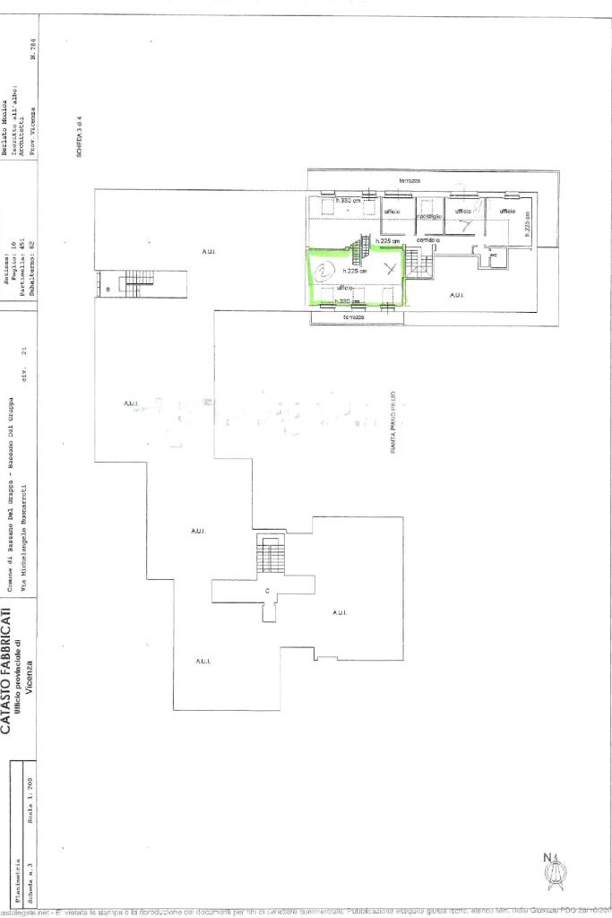
Ufficio; 50mq; Bassano del Grappa (VI)

DESCRIZIONE E PARTICOLARITA’
Proponiamo in locazione un immobile ad uso direzionale di circa 50mq, situato nel Comune di Bassano del Grappa (VI).

L’ufficio è inserito in un prestigioso contesto di co-working, ideale per professionisti e piccole realtà che desiderano operare in un ambiente condiviso e stimolante.

La stanza dispone inoltre di un soppalco, che consente di organizzare diverse postazioni di lavoro in modo funzionale e confortevole, ottimizzando gli spazi disponibili.

L’unità è dotata di un servizio igienico, impianto di riscaldamento a radiatori e pompa di calore per riscaldamento e raffrescamento. Le finiture storiche conferiscono agli ambienti un fascino unico, coniugando eleganza e funzionalità.

Tutte le spese condominiali e le utenze (luce, acqua, riscaldamento e raffrescamento) sono comprese nel canone di locazione, garantendo una gestione semplice, trasparente e senza costi aggiuntivi.

Il presente ufficio non è locato con contratto ad uso non abitativo 6+6, ma con contratto “Resident Office”, rinnovabile mensilmente, ideale per liberi professionisti che necessitano di flessibilità.

Completano la proprietà parcheggi riservati e la comoda disponibilità di posti auto pubblici nelle immediate vicinanze.

L’immobile si trova in posizione strategica, facilmente accessibile e ben collegata con le principali arterie stradali. Gode inoltre di ottima visibilità, ideale per attività che desiderano una presenza riconoscibile sul territorio.

UBICAZIONE E CONTESTO

L'immobile sorge nel Comune di Bassano del Grappa (VI) e a pochi minuti dal casello della nuova Autostrada Pedemontana Veneta. L'area è facilmente raggiungibile e dotata di numerosi bar, ristoranti e parcheggi.

Per maggiori informazioni rivolgersi in agenzia.

0424 500740

vihp6

Per ulteriori informazioni contattateci in Agenzia e seguiteci su Facebook ed Instagram, cliccando 'mi piace' sulla pagina Tecnocasa Industriale Bassanese. Scaricate gratuitamente l'App Tecnocasa sul vostro smartphone e sarete sempre aggiornati sulle nostre proposte di vendita e locazione.

Mostra tutto

Nelle vicinanze

Trasporto pubblico Trasporto pubblico
Bassano del Grappa
Bassano del Grappa
1,4 Km
Bassano - Quartiere Firenze
Bassano - Quartiere Firenze
90 m
Ca' Rezzonico
Ca' Rezzonico
240 m
Ricariche auto elettriche Ricariche auto elettriche
EnelX Parcheggio Gerosa
930 m
Bassano Piazzale Trento | EnelX
1,3 Km
Eurobrico Bassano
1,6 Km
Magazzini Nico
2,0 Km
Nissan Scalcauto Group
2,5 Km
Scuole Scuole
Scuola Elementare "A.Canova"
560 m
Liceo scientifico Jacopo da Ponte
650 m
I.T.E.T Einaudi
670 m
Istituto Vescovile Graziani
690 m
I.T.I.S. Enrico Fermi
730 m
Farmacia Farmacia
Farmacia comunale
450 m
Farmacia
1,0 Km
Parafarmacia
1,3 Km
Erboristeria
1,5 Km
Alle due Colonne
1,5 Km
Ospedali Ospedali
Ospedale San Bassiano - ULSS 7 Pedemontana
770 m
Supermercati Supermercati
Contrà del Sole
300 m
Prix
310 m
Aliper
850 m
Biosapori
1,1 Km
Mini Market
1,2 Km
Negozi Negozi
Montura Alpstation
290 m
Panificio
320 m
Chicco
500 m
Giannaè
550 m
Dolciumi De Antoni
620 m
Bar Bar
Bar Quartiere Firenze
130 m
L'incontro
220 m
Bar
260 m
Cu.pi
330 m
Bar Patronato Santa Croce
550 m
Ristoranti Ristoranti
Johnny Gallo
360 m
Gatto e la Volpe
500 m
Pizzeria Salernitana
800 m
Al Camin
840 m
Locanda Casanova
1,1 Km
Mostra tutto

Caratteristiche

Rif.:
61132886
Piano:
1 di 3 (Piano medio)
Posti auto:
10
Balconi:
1
Condizionamento:
Autonomo
Ascensore:
No
Mostra tutto
Prezzo Prezzo
€ 700 / mese
Spese annue Spese annue
€ 0

Classe Energetica

C
C
C
C
C
C
C
C
C
EP globale non rinnovabile:
1234.00 kW h/m² anno
EP globale rinnovabile:
1234.00 kW h/m² anno
EP invernale del fabbricato:
EP estiva del fabbricato:
Anno di costruzione:
1975
Riscaldamento:
Autonomo
Tipo impianto:
A radiatori
Tipo alimentazione:
Metano

Ti interessa visionare l'immobile?

Fissa un appuntamento  Fissa un appuntamento

Richiedi informazioni

Clicca su Leggi per aprire l'informativa
* Questi campi sono obbligatori
Affiliato
Studio Industriale Bassanese Srl
Viale Vicenza, 81 36061 Bassano Del Grappa (VI)
Viale Vicenza, 81 36061 Bassano Del Grappa (VI)
Zona: Bassano del Grappa-Marostica-Tezze sul Brenta-Rosà-Cassola-Romano d'Ezzelino
Mostra su mappa
Affiliato
Studio Industriale Bassanese Srl
Viale Vicenza, 81 36061 Bassano Del Grappa (VI)

2026 Tecnocasa Franchising S.p.A. - P. IVA 08365160152 - Via Monte Bianco 60/A 20089 Rozzano (MI). Ogni agenzia ha un proprio titolare ed è autonoma. Privacy policy | Policy utilizzo | Cookie policy